24小时服务热线:
0592-5969681
智慧城市
当前位置:主页 > 解决方案 > 智慧城市 >

窨井液位监测系统解决方案

一、方案背景
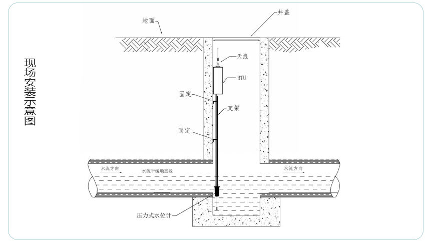
窨井液位监测系统主要在城市窨井内安装无线液位变送器、窨井液位监测仪,将窨井液位数据动态传输到辰迈物联网窨井液位监测系统平台,通过窨井液位监测系统平台实现排水管网液位在线分析、多级报警、淤堵分析、内涝分析等。窨井液位监测系统主要应用于智慧城市、智慧水务、智慧排水等新基建项目中,为排水管理部门提供实时的、有效的系统化监测数据。窨井液位监测系统相关软、硬件产品均由辰迈自主研发、设计、生产,取得防爆、IP68等多项目行业检测、认证,满足各种恶劣环境下的液位监测应用需求。

 
 
 
二、系统组成
窨井液位监测系统主要由遥测站(无线液位变送器、窨井液位监测仪等)和平台管理中心组成。遥测站主要监测各个地区的实时水位、降雨量、现场图像等数据信息,并上传至平台管理中心。平台管理中心通过监测预警平台,接收并处理由遥测站发出的数据,根据需求向决策者预警决策信息。同时系统可通过WEB、移动端、短信等方式快速发布相关预警信息。窨井液位监测系统为典型的物联网系统,分为感知感层、网络层、平台层、应用层。
 

感知层
无线液位变送器、液位监测仪位于物联网结构中的最底层,通过传感网络获取感知信息。感知层是物联网的核心,是信息采集的关键部分。
网络层
网络层是数据通信的核心,是数据传输的主要通道,网络层主要采用NB-IoT通信网络,具备覆盖广、连接多、速率快、成本低、功耗低、架构优等特点。
平台层
通信服务层由物联网设备管理平台组成,实现数据的汇集与管理,为管网监测平台及其他应用平台提供专业、便捷的数据接口服务。
应用层
应用层为窨井液位监测系统平台及第三方应用平台,为运维部门、管线权属单位等相关部门提供数据展示、决策分析等信息服务。
 
 
 
三、系统功能
 
采集功能:可采集监测点水位、降雨量等水文数据,掌握实时动态。
告警功能:水位、降雨量超过告警阈值时,监测站点主动向上级告警。
管理功能:具有数据分级管理功能,监测站点管理等功能。
存储功能:具备断电存储功能,掉电数据不丢失;数据库可以记录历史数据。
查询功能:后台可以查询各种历史记录。
分析功能:水位、降雨量等数据可以生成曲线及报表,供趋势分析。
扩展功能:具备良好的扩展功能,支持通过OPC接口与其它系统对接。
 
 
 
 
  四、系统特点:
 
●一体式设计,专业设备,IP68防水、电池自供电、微功耗运行,可实现前端站点的快速调试与部署。
 
●采用多种水位监测,多样功能, 可根据具体需求灵活调整功能、增减监测项。
测量精度高,抗干扰能力强。
 
●采用无线传输方式,突破地域限制,适应性强。
 
●基于自主研发的无线产品,可远程对设备进行调试维护。
 
●基于B/S架构的系统平台,可快速方便的对系统进行访问。
 
●专属客户端支持用户随时随地查看当前设备状态。
 
●采用防雷、防雨、防潮、输入信号隔离等多项措施,确保设备安全、性能稳定可靠。
 
●兼容性强,兼容各种类型的水位、雨量、位移等计量仪表或传感器,设备支持电信、移动、联通等运营商NB-IOT网络,兼容各大运营商物联网平台接入。
 
●超低功耗,核心设备选用2G/3G/4G低功耗测控终端,平均工作电流仅10mA,大大降低太阳能供电设备成本和施工难度。
 
 
 
五、系统意义
窨井液位监测系统解决方案可以有效对窨井进行全天候实时监测,实时掌握水流情况有效支撑排水管网的日常运维工作和汛期排涝联动,如有异常险情,第一时间采取应对措施,同时可以利用大数据、气象数据对窨井液位监测系统水位进行预测,提前做好相关部署,对当地窨井液位监测防洪减灾工作的有序进行具有重大的意义。