24小时服务热线:
0592-5969681
智慧城市
当前位置:主页 > 解决方案 > 智慧城市 >

城市排水管网窨井水位监测系统解决方案

一、方案背景
排水管网肩负着城市防汛排水,污水收集输送的重任,是城市重要的基础设施。排水管网的正常运行以及对排水管网的科学化管理,对于保障城市的正常运行,稳定社会经济社会发展,安定人民生活起着十分重要的作用。建立排水管网窨井水位监测信息系统,为城市排水管理者提供实时观察排水管网水位变化,分析排水管网动态运行状况的管理平台,已经成为现代城市排水管理的紧近需求。
 
辰迈智慧结合《城镇污水处理三年提质增效行动方案》和市场用户对排水系统的管理需求,并总结多年水务客户服务经验,推出协助排水提质增效管理的支撑产品,城市排水管网窨井水位监测系统解决方案。
 
二、系统组成
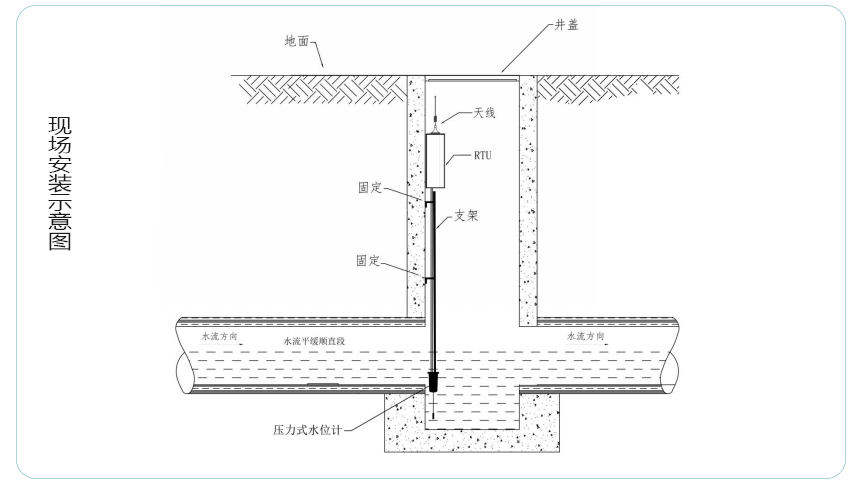
排水管网水位监测系统主要由安装于排水检查井内的窨进水位监测终端和位于管理中心的排水管网信息处理平台两大部分组成。水位监测终端采用2G/3G/4G无线通讯方式并通过互连网与排水管网信息处理平台建立远程通信链路。对于排水管网窨井水位监测(污水、雨水)系统管理水平,解决目前问题和未来风险,保障居民日常生产与生活。系统组成城市排水管网窨井水位监测系统总体架构由感知层、传输层、数据层、服务层、应用层以及标准规范和运行保障体系组成。
 
感知层
无线液位变送器、水位监测仪位于物联网结构中的最底层,通过传感网络获取感知信息。感知层是物联网的核心,是信息采集的关键部分。
网络层
网络层是数据通信的核心,是数据传输的主要通道,网络层主要采用NB-IoT通信网络,具备覆盖广、连接多、速率快、成本低、功耗低、架构优等特点。
平台层
通信服务层由物联网设备管理平台组成,实现数据的汇集与管理,为管网监测平台及其他应用平台提供专业、便捷的数据接口服务。
应用层
应用层为窨井水位监测系统平台及第三方应用平台,为运维部门、管线权属单位等相关部门提供数据展示、决策分析等信息服务。
 
三、系统功能:
 
★监测管网重要节点窨井水位,及时发现管网淤积、堵塞现象。
★及时提供管网运行预警信息,为应急防汛工作提供决策依据。
★诊断排水管网中的瓶颈管段,为管网改造提供依据。
★为评估低洼、易涝区域的排水能力提供分析数据。
 
四、系统特点
1.多元化数据采集方案覆盖排水监测业务
由设备仪表构建的监测环境结合人工采集的数字化接入与应用,实现对排水系统运行监测全业务覆盖,为运营养管提供准确可靠的运行数据。
 
2.分析诊断工具,雨污混接、入流入渗等问题分析
整合已有排水户污染源数据、管网拓扑关系、排水系统运行等数据,依托专项分析诊断工具,为用户提供运营养管过程中多种分析方法,诊断管网存在问题,为排水系统提质增效提供科学决策依据。
3.“排水户-管网-排口”,数字化排查
通过数字化排查过程将外业数据采集与内业数据处理相互结合,实现数据采集、检查、成图、结表、入库一步到位,优化工序流程提高排查时效性。
 
4.管网信息化管理与数据挖掘
针对排水管网碎片化排查成果,应用GIS的技术手段、对管网排查和管网窨井水位监测结果进行数据挖掘,实现管网空间管线分析,分类管网拓扑问题,评估管网健康度,为排水管网改扩建和运营养管提供数据基础。
5.运维精细化管理:
用于对外包单位的巡查养护工作进行监管,从运维班组、计划排布、过程管理和绩效考核提供精细化管理,确保排水管网系统设施设备正常运行,为运营养管提供运行保障。
 
6.工程建设管控
满足在有限资源的约束下,建立能满足关键性业务处理需求和具有统一性的工程管理业务规程,确定标准化信息处理过程、统一数据报表的标准格式,建立可共享的工程管理数据库和建设主体黑名单。
 
五、系统价值
1、信息实时预警:通过预测评估数据跟历史大数据特征值、警戒值进行分析比较,发现窨井水位原因,提前做出预判,发出警告。
2、 减少城市内涝危害:实时监测积水深度,超过报警值时禁止通行,保护居民生命和财产安全,减少暴雨频发时城市内涝带来的危害。
3、 优化城市排水管网和窨井设计:建立城市排水远程监控系统,便于城市优化排水管网设计,减少雨水地表径流,减少排水污染。使排水更加合理化、高效化。