24小时服务热线:
0592-5969681
环境监测
当前位置:主页 > 解决方案 > 环境监测 >

窨井液位监测/窨井液位在线监测系统

一、方案背景
窨井是雨/污水排水管网的必要构筑物,是方便日常检查、预防和疏通管道堵塞的重要设施。窨井液位监测/窨井液位在线监测是智慧排水建设的重要内容。管理部门通过该系统可全局掌握排水管网的运行状况、有效识别淤积管段并及时发现井盖异常,以快速做出防汛响应、保障居民出行安全。
 
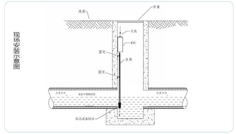
二、系统组成
窨井液位监测/窨井液位在线监测系统主要由遥测站(无线液位变送器、窨井液位监测仪等)和平台管理中心组成。遥测站主要监测各个地区的实时水位、降雨量、现场图像等数据信息,并上传至平台管理中心。平台管理中心通过监测预警平台,接收并处理由遥测站发出的数据,根据需求向决策者预警决策信息。同时系统可通过WEB、移动端、短信等方式快速发布相关预警信息。窨井液位监测系统为典型的物联网系统,分为感知感层、网络层、平台层、应用层。
 
 
感知层
无线液位变送器、液位监测仪位于物联网结构中的最底层,通过传感网络获取感知信息。感知层是物联网的核心,是信息采集的关键部分。
网络层
网络层是数据通信的核心,是数据传输的主要通道,网络层主要采用NB-IoT通信网络,具备覆盖广、连接多、速率快、成本低、功耗低、架构优等特点。
平台层
通信服务层由物联网设备管理平台组成,实现数据的汇集与管理,为管网监测平台及其他应用平台提供专业、便捷的数据接口服务。
应用层
应用层为窨井液位监测系统平台及第三方应用平台,为运维部门、管线权属单位等相关部门提供数据展示、决策分析等信息服务。
 
 
三、系统功能
★ 监测管网重要节点窨井水位,及时发现管网淤积、堵塞现象。
 
★ 监测窨井相关状态,如有异常发生时立即报警。
 
★ 及时提供管网运行预警信息,为应急防汛工作提供决策依据。
 
★ 诊断排水管网中的瓶颈管段,为管网改造提供依据。
 
★ 为评估低洼、易涝区域的排水能力提供分析数据。
 
★ 追溯管网运行历史状况,辅助进行事故分析。
 
 
 
四、系统特点
◆ 专业设备:IP68防水、电池自供电、微功耗运行。
 
◆ 多样功能:可根据具体需求灵活调整功能、增减监测项。
 
◆ 兼容性强:对下可匹配各类检测仪表、感知设备;对上可通过OPC、数据库等形式对接其它应用平台。
 
◆ 维护方便:窨井监测RTU支持远程参数设置、远程设备维护。